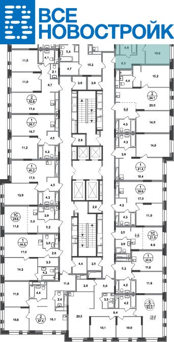
2-комнатная квартира: Московский, микрорайон Первый Московский, жилой комплекс Первый Московский, 7-я фаза (53.1 м²)

Московский, микрорайон Первый Московский, жилой комплекс Первый Московский, 7-я фаза

Саларьево
Филатов Луг
Аэропорт Внуково

12 292 166 ₽

Жилой комплекс
В наличии

Характеристики

Количество комнат

2

Вид объекта

Новостройка

Площадь

53.1

Этаж

10

Этажей в доме

20

Жилая площадь

22.3

Срок сдачи

2027

Описание

Продается двухкомнатная квартира без отделки в 7 фазе города-парка "Первый Московский". Общая площадь квартиры - 53,1 кв. м, этаж 10 из 20. Срок сдачи - 1 квартал 2027 года. Тип дома - монолитный. Новый корпус состоит из 3х секций: - 1 и 2 секции с отделкой White Box с возможностью приобретения чистовой отделки за дополнительную плату - 3 секция без отделки Город-парк "Первый Московский" расположен всего в 7 км по Киевскому шоссе (Новая Москва). Из города-парка прямой выезд на Киевское...
Продается двухкомнатная квартира без отделки в 7 фазе города-парка "Первый Московский". Общая площадь квартиры - 53,1 кв. м, этаж 10 из 20. Срок сдачи - 1 квартал 2027 года. Тип дома - монолитный. Новый корпус состоит из 3х секций: - 1 и 2 секции с отделкой White Box с возможностью приобретения чистовой отделки за дополнительную плату - 3 секция без отделки Город-парк "Первый Московский" расположен всего в 7 км по Киевскому шоссе (Новая Москва). Из города-парка прямой выезд на Киевское шоссе и трассу Солнцево-Бутово-Варшавское шоссе. ТРАНСПОРТНАЯ ДОСТУПНОСТЬ: - 5 мин. на личном автомобиле или 10 мин. на автобусе №189 и №147 до станции метро «Филатов Луг» - 25 мин. пешком до станции метро «Филатов Луг» ИНФРАСТРУКТУРА: Около 7 фазы запланировано строительство детского сада, школы, 2 многоуровневых паркинга. Также на территории проекта есть все необходимые объекты действующей социальной и бытовой инфраструктуры: 8 детских садов, 5 школ, тц, магазины, паркинги, аптеки и др. БЛАГОУСТРОЙСТВО: - Дворы без машин - Игровые зоны для детей, зоны для занятия спортом, зоны для отдыха с навесами/качелями - Детские площадки разделены по возрастным группам - Пешеходный и вело-маршрут с двуполостной велодорожкой 2,5 м. в ширину - Озеленение с растениями всесезонного цветения ОСОБЕННОСТИ АРХИТЕКТУРЫ: В каждой секции 3 корпуса предусмотрены: - колясочные во входных группах - кладовые помещения с -1 по 20 этажи - коммерческие помещения на 1 этажах - по 4 лифта: 2 пассажирских, 2 грузовых - видеонаблюдение установленное в холлах первых этажей, у подъездов и прилегающей территории АВТОРСКИЙ ДИЗАЙН: Входные группы выполнены по авторскому дизайну, оснащены системой «тёплый пол». В каждой входной группе будет располагаться комфортабельная зона ожидания с мягким диваном, акцентными пуфами и столиком.

Расположение и инфраструктура Московский, микрорайон Первый Московский, жилой комплекс Первый Московский, 7-я фаза

2-комнатная квартира 53.10 м²

Жилой комплекс
  • Срок сдачи

  • Стоимость

  • Застройщик

Спецпредложения от Застройщиков

В Москве и Московской области

Вас может заинтересовать

В Москве и Московской области