1-комнатная квартира: посёлок городского типа Боброво, Крымская улица, 15 (26 м²)

Крымская улица, 15

Бульвар Дмитрия Донского
Улица Старокачаловская
Бутово D2

5 000 000 ₽

Жилой комплекс
В наличии

Характеристики

Количество комнат

1

Вид объекта

Новостройка

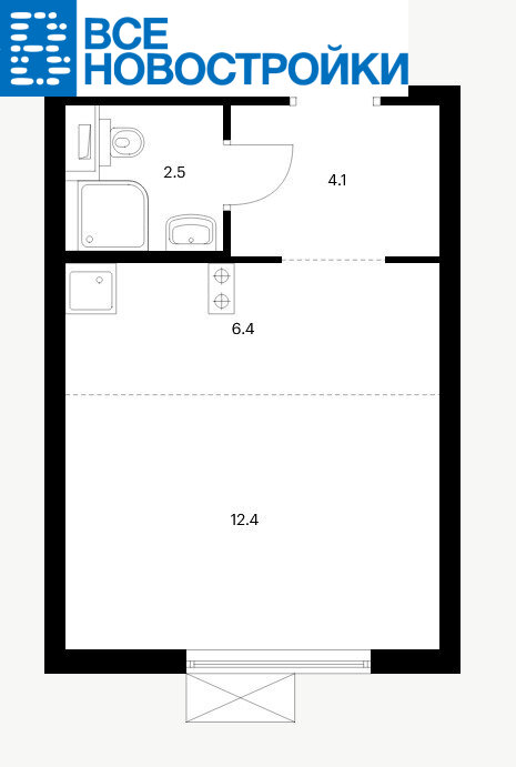
Площадь

26

Этаж

3

Этажей в доме

16

Площадь кухни

6.4

Жилая площадь

14

Срок сдачи

2025

Описание

Продаётся квартира с отделкой площадью 26 кв.м на 3 этаже 16-этажного дома. Возможно оформление ипотеки и рассрочки. Жилой комплекс «Восточное Бутово» находится в 5 км от МКАД по Симферопольскому шоссе, в Ленинском районе Московской области. До ближайших станций метро и МЦД «Бутово» можно добраться за 25 минут. Это экологически благоприятный район, соседствующий с Бутовским лесопарком. В рамках проекта планируется открытие собственных школ и детских садов, а также создание двух пешеходных бульв...
Продаётся квартира с отделкой площадью 26 кв.м на 3 этаже 16-этажного дома. Возможно оформление ипотеки и рассрочки. Жилой комплекс «Восточное Бутово» находится в 5 км от МКАД по Симферопольскому шоссе, в Ленинском районе Московской области. До ближайших станций метро и МЦД «Бутово» можно добраться за 25 минут. Это экологически благоприятный район, соседствующий с Бутовским лесопарком. В рамках проекта планируется открытие собственных школ и детских садов, а также создание двух пешеходных бульваров, один из которых уже открыт для прогулок, и двух поликлиник, одна из которых уже работает.

Расположение и инфраструктура Крымская улица, 15

1-комнатная квартира 26.00 м²

Жилой комплекс
  • Срок сдачи

  • Стоимость

  • Застройщик

Спецпредложения от Застройщиков

В Москве и Московской области

Вас может заинтересовать

В Москве и Московской области