ЖК «INSIDER»: взгляни на столицу изнутри
Название ЖК написано на английском языке, поэтому, чтобы понять его смысл, нужно заглянуть в словарь английского языка. «Инсайдер - лицо, имеющее доступ к секретной информации по своему служебному положению». Что же такого секретного скрыто за стенами апартаментов на Симоновской набережной, в излучине Москвы-реки? Дом пока не заселен, можно только строить предположения. И присмотреться к нему поближе.

Как проехать
Новостройка расположена по адресу г. Москва, внутригородское муниципальное образование Даниловское, ул. Автозаводская, вл. 24, корп. 1


На автомобиле от 24 километра МКАД до новостройки можно доехать за 26 минут (расстояние 17,5 километра). До центра Москвы, например, до Театрального проезда», от ЖК можно доехать за 22 минуты (расстояние 10 километров). Впрочем, время поездки может увеличиться из-за затрудненного трафика.
Удобно пользоваться общественным транспортом.



В 21 минуте пешего хода расположена станция метро «Тульская», в 14 минутах ходьбы - станция метро «Автозаводская», в 25 минутах - станция МЦК «ЗИЛ».


По улице Автозаводской (входит в состав Третьего транспортного кольца) курсируют многочисленные маршруты городских автобусов.


А по реке бегают электрические речные трамвайчики.



Что строят
На земельном участке площадью 1,3 гектара строят многоэтажное многосекционное здание краткосрочного пребывания гостиничного типа. Иными словами – апартаменты. Технология строительства монолитная, класс энергоэффективности А (высокий).



Извещение о начале строительства подано 6 июня 2022 года. Проектная декларация опубликована 09.08.2022 года. Начало строительства было запланировано на 14 июня 2022 года, окончание – на 27 апреля 2025 года. По проекту комплекс рассчитан на 1179 жителей.

Архитектурно-строительное проектирование здания, представляющего собой перевернутую арку, выполнили специалисты бюро «Цимайло, Ляшенко и партнеры» и компании «Капительстройпроект».
Фасады новостройки отделают белым кирпичом. Панорамное остекление квартир (75 % панорамных окон) минимизирует потребность в лоджиях и балконах. На высоких этажах запроектированы террасы.




На первых этажах построят офисные помещения площадью от 43 до 493 кв.м. с высотой потолков от 3,45 до 3,85 метра. В них будет организована работа кафе, конференц-зала и супермаркета. А также переговорные, мастерская, игровая комната и многофункциональные залы для мероприятий. Система кондиционирования воздуха централизованная.
В лобби разместится служба отельного сервиса, гостевой санузел, зона ожидания, помещения для хранения багажа и помещения общественного назначения.




Здание семисекционное, состоит из трех корпусов. В секции на одном этаже размещается от 4 до 12 апартаментов и 2 лифта грузоподъемностью не менее 1000 килограмм. На лифтах можно будет спускаться в подземный паркинг.
В подземной части здания, общей для всех корпусов, оборудуют автопарковку на 228 мест площадью от 13,25 до 15,9 кв.м и 24 кладовые площадью от 1,36 до 7,68 кв.м. Дополнительные парковочные места на территории не проектируются.




В паркинге предусмотрены помещение для мойки колес, интеллектуальная система парковки, зарядки для электромобилей.
Территория внутреннего двора площадью 3 250 кв.м. организована как ландшафтный благоустроенный парк с зелеными зонами отдыха, детскими и спортивными площадками, велосипедными дорожками. Центром притяжения во время прогулок по дворовой территории станет благоустроенная Симоновская набережная с видом на Москву-реку.
Бытовой мусор планируется собирать в подземном этаже с последующим вывозом специальным транспортом на полигоны ТБО.
Апартаменты с высотой потолков 2,9 метра сдаются с чистовой отделкой, причем в трех вариантах, на выбор покупателя. Clean, Classic и Contrast.
- Clean: светлые оттенки и геометричные линии
- Classic: элегантность и спокойствие в теплой цветовой гамме
- Contrast: контрастное сочетание материалов и цветов.
Потенциальный покупатель сможет увидеть интерьер будущей квартиры при посещении шоу-румов, оформленных в разных стилях, оборудованных на объекте.
Что входит в отделку:
- Установка входной металлической двери
- Установка внутренних дверей
- Внутренние перегородки, выполнены из блоков, оштукатурены
- В комнатах, кухне, коридорах и кладовых армирующие обои под покраску, в санузлах – керамическая плитка
- Остекление из алюминиевых профилей с двухкамерным стеклопакетом
- Централизованная система отопления горизонтального типа с установкой внутрипольных конвекторов.
- Индивидуальные приборы учета устанавливаются в общем коридоре.
- Магистральные подводки холодной и горячей воды, с установкой оконечных устройств и индивидуальных приборов учета в общем коридоре.
- Монтаж сантехнического оборудования санузла.
- Вытяжная система вентиляции
А также:
- гипсокартонные или натяжные потолки
- керамическая плитка во всю высоту стены до потолка в санузлах и на кухне
- армирующие обои и окраска на стенах жилой зоны
- полы из паркетной доски
- подвесной унитаз с встраиваемой инсталляцией
- акриловая ванна со смесителем или душевая кабина
- подключение приборов к системам ХВС, ГВС, СО и канализации
- наличие клавишных выключателей и электрических розеток
- WiFi роутер
- установка точечных светильников в ванной комнате, санузле
- установка домофона и сенсоров системы «Умный дом»
Система «Умный дом»» комплектуется по желанию собственника. На всей территории комплекса будет функционировать стабильная сотовая связь. Территория полностью закрытая, вход по электронным пропускам, видеонаблюдение – круглосуточное.
Управлять домом будет сервисная компания Comfort&Usability Company, которая, при желании заказчика, сможет взять на себя уборку апартаментов, стрику и глажку белья, оказывать другие услуги. Например, выгул животных, ремонт в номере, уход за комнатными растениями.
Коммунальные платежи за помещение в апарт-отеле могут достигать 200 рублей за квадратный метр.
Некоторые технические параметры комплекса приведены в таблице №1.
Таблица 1.
| №№ корп. | Кол-во этажей | Площ. застр. (кв. м.) | Кол.секц.
| Общее кол-во апартаментов/маш.мест/кладов/нежил.пом/ | Дата выдачи разр. на стр-во | Окончание срока действия разр. на стр-во | Предполагаемая дата введения в эксплуатац. |
|---|---|---|---|---|---|---|---|
| 1 | 3-16+2 подз | 8913 | 7 | 909/228/24 | 27.04.2022 г. | 27.04.2025 г. продлено 27.04.2026 г | 1 квартал 2026 г. |
Срок сдачи объекта в эксплуатацию увеличен на 3 квартала.
Площадь участка составляет 13 531 кв.м.
В настоящее время завершены монолитные работы на всех корпусах, продолжается кладка стен и перегородок, идет отделка фасадов и монтаж внутренних и наружных инженерных систем.
Выдача ключей собственникам намечена на 30.06.2026 года.
Кто строит
Строительство на земельном участке с кадастровым номером 77:05:0002002:32 ведет ООО «Специализированный застройщик «Паритет», созданное в марте 2017 года. Коммерческое обозначение застройщика «РКС Девелопмент».
В течение трех лет до подачи проектной декларации компания жилищного строительства не вела. Участок принадлежит застройщику на праве долгосрочной аренды.



Ранее на участке находилось автотранспортное предприятие.
Участок ограничивают:
- с севера - Симоновская набережная, станция грубой очистки УТР «Мосводоток» и река Москва
- с востока – территория АЗС «Лукойл»
- с юга – улица Автозаводская
- с запада – ЖК «Форст»
Учредители ООО «РКС-Москва» и ООО «Сбербанк инвестиции»
Проект «Инсайдер» признан лучшим на престижной премии MOVE Realty Awards 2025 (в номинации «Проект года — апартаменты Москва»), занял четвертое место в московском рейтинге «ТОП жилых комплексов».
Девелопер проекта – группа компаний РКС-Девелопмент. С 2007 года компания занимается строительством жилья в Краснодаре, Пензе, Астрахани, Ханты-Мансийске, Темрюке, Твери, Сочи, Анапе, Москве и Московской области. В портфеле компании 1.5 млн кв.м. жилья.
Генеральный подрядчик ООО «РКС-Строй».
Сайт
Сайт новостройки позволяет получить общее представление о локации, окружении и внешнем виде корпусов. Здесь же можно получить информацию о планировках, ценах на квартиры, способах покупки, познакомиться со строительной документацией.

Офис продаж находится непосредственно на объекте по адресу: город Москва, внутригородское муниципальное образование Даниловское, улица Автозаводская, владение 24, корпус 1. Работает ежедневно с 9 до 21 часа.
Сколько стоит
Ниже в таблице представлены цены на апартаменты.
Таблица 2.
| Тип апартамента | Площадь (кв. м) | Стоимость апартамента (руб.) | Стоимость одного квадратного метра (руб.) |
|---|---|---|---|
| Студия | 22,11 – 37,3 | 13 788 840 – 17 950 920 | 623 647 - 481 257 |
| Однокомнатный | 36,3 – 79,0 | 15 631 000 – 36 502 620 | 430 606 – 462 058 |
| Двухкомнатный | 56,5 – 113,1 | 28 573 820 – 56 488 455 | 505 731 - 499 455 |
| Трехкомнатный | 69,7 - 134,7 | 31 383 000 – 68 013 400 | 450 258 - 504 925 |
Средняя стоимость квадратного метра в новостройке составляет 494 742 рубля.
Сравним цены на двухкомнатные апартаменты бизнес-класса с отделкой и без, строящиеся на юге Москвы.
Таблица 3.
| Название ЖК | Станция метро или МЦК | Площадь квартир (кв. м.) | Стоимость квартир (руб.) | Стоимость одного кв.м. (руб.) | Отделка | Срок сдачи |
|---|---|---|---|---|---|---|
| «Доро Миле» | «Киевская» | 79,6 | 104 210 500 | 1 309 177 | Есть | 2 квартал 2026 г. |
| «Инсайдер» | «Тульская» | 56,5 | 28 573 820 | 505 731 | Есть | 1 квартал 2026 г. |
| «Ривер Парк Коломенское» | «Нагатинский затон» | 51,1 | 20 183 094 | 394 972 | Нет | 4 квартал 2027 г. |
| «ЭвоПарк Сокольники» | «Преображенская площадь» | 37,86 | 13 061 700 | 345 000 | Нет | 1 квартал 2026 г. |
| «Мираполис» | «Ростокино» | 37,6 | 11 505 600 | 306 000 | Нет | 2 квартал 2026 г. |
| «Наметкин Тауэр» | «Новые Черемушки» | 49,3 | 14 999 120 | 304 242 | Нет | 2 квартал 2026 г. |
| «Аквилон Сигнал» | «Владыкино» | 49,8 | 14 412 917 | 289 416 | Нет | 4 квартал 2026 г. |
По стоимости квадратного метра «скрытный» ЖК придерживается лидерских позиций.
Планировки
На продажу выставлены студии, одно-, двух- и трехкомнатные апартаменты площадью от 22,1 до 134,7 кв.м.









Студия располагает входной зоной площадью 4,3 кв.м., совмещенным санузлом площадью 3,61 кв.м. и универсальным помещением площадью 13,68 кв.м.

Студия спроектирована с входной зоной площадью 3,95 кв.м., совмещенным санузлом площадью 4,32 кв.м. и универсальным помещением площадью 21,79 кв.м.

Студия оснащена входной зоной площадью 4,6 кв.м., совмещенным санузлом площадью 4,38 кв.м. и универсальным помещением площадью 28,49 кв.м.

Для однокомнатного апартамента запроектирована входная зона площадью 4,62 кв.м., совмещенный санузел площадью 4,85 кв.м., кухня-гостиная площадью 15,78 кв.м. и спальня площадью 10,75 кв.м. Расположение окон одностороннее.

Данный однокомнатный апартамент – это входная зона площадью 6,4 кв.м., совмещенный санузел площадью 4,82 кв.м., кухня-гостиная площадью 15,25 кв.м., спальня площадью 14,36 кв.м. и гардеробная площадью 4,85 кв.м. Расположение окон одностороннее.

У однокомнатного апартамента имеется входная зона площадью 6,31кв.м., совмещенный санузел площадью 4,32 кв.м., кухня-гостиная площадью 27,86 кв.м. и спальня площадью 20,29 кв.м. Расположение окон одностороннее. В кухне-гостиной сплошное панорамное остекление.

Для просторного однокомнатного апартамента спроектирована входная зона площадью 6,31кв.м., совмещенный санузел площадью 4,32 кв.м., кухня-гостиная площадью 27,86 кв.м. и спальня площадью 20,29 кв.м. Его отличие от аналогичной планировки заключается в присутствии открытой террасы площадью 20,27 кв.м. Расположение окон одностороннее.

Двухкомнатный апартамент с входной зоной площадью 6,72 кв.м. (с учетом внутреннего коридора), двумя санузлами площадью 2,01 и 4,26 кв.м., кухней-гостиной площадью 16,51 кв.м. и двумя спальнями площадью 11,95 и 15,59 кв.м. Расположение окон угловое.

Двухкомнатный апартамент располагает входной зоной площадью 7,88 кв.м. (с учетом внутреннего коридора), двумя санузлами площадью 3,5 и 5,61 кв.м., кухней-гостиной площадью 23,86 кв.м. и двумя спальнями площадью 13,67 и 14,04 кв.м. Имеется постирочная площадью 4,59 кв.м. Расположение окон одностороннее.

Двухкомнатный апартамент оснащен входной зоной площадью 10,92 кв.м., двумя санузлами с площадью помещений 3,0 и 4,65 кв.м., кухней-гостиной площадью 22,76 кв.м. и двумя спальнями площадью 12,5 и 13,43 кв.м. А также террасой площадью 20,15 кв.м. Расположение окон угловое.

Большой двухкомнатный апартамент, сопоставимый с гостиничным номером класса «люкс» оснащен входной зоной площадью 8,44 кв.м. (с учетом внутреннего коридора), двумя санузлами с площадью помещений 3,52 и 4,19 кв.м., кухней-гостиной площадью 31,4 кв.м. и двумя спальнями площадью 11,06 и 13,27 кв.м. А также террасой площадью 41,22 кв.м. Расположение окон угловое. Имеется мастер-спальня.

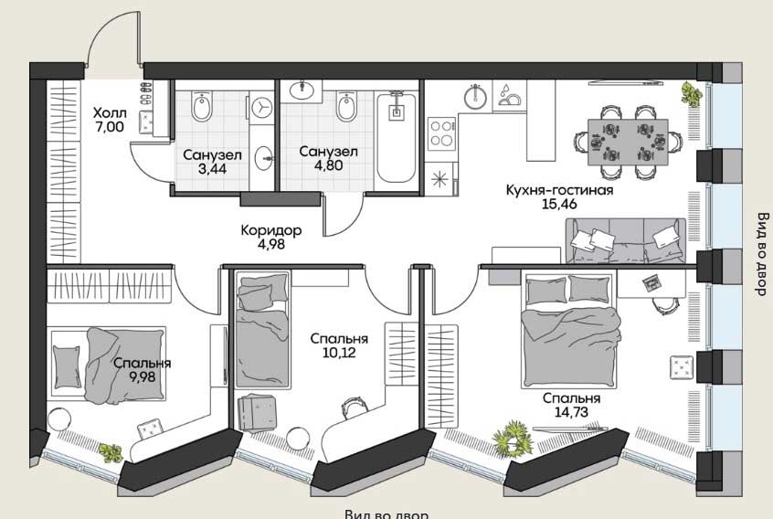
В трехкомнатном апартаменте запроектированы входная зона площадью 11,98 кв. м. (с учетом внутреннего коридора), два санузла с площадью помещений 3,44 и 4,8 кв.м., кухня-гостиная площадью 15,46 кв.м. и три спальни площадью от 9,98 до 14,73 кв.м. Расположение окон одностороннее.

В планировке трехкомнатного апартамента встречается входная зона площадью 14,78 кв.м. (с учетом внутреннего коридора), два санузла площадью 3,98 и 6,97 кв.м., кухня-гостиная площадью 36,2 кв.м. и три спальни площадью от 10,54 до 16,0 кв.м. Есть также гардеробная площадью 2,55 кв.м. Расположение окон угловое.
Просторный апартамент располагает входной зоной площадью 14,15 кв.м. (с учетом внутреннего коридора), тремя санузлами с площадью помещений от 3,01 до 5,52 кв.м., кухней-гостиной площадью 24,51 кв.м. и тремя спальнями площадью от 13,1 до 13,12 кв.м. А также есть терраса площадью 31,11 кв.м. и гардеробная площадью 7,76 кв.м. Расположение окон угловое. Имеется постирочная площадью 4,39 кв.м. Одна из спален спроектирована в формате «мастер».
Как купить
В рамках федерального закона №214 ФЗ покупатель размещает денежные средства на счете эскроу в ПАО СБЕРБАНК и заключает с застройщиком договор долевого участия. После регистрации договора в госорганах покупатель приобретает право собственности на купленные квадратные метры.
Для тех, кто использует заемные средства, застройщик предлагает специальные программы. Например, «Ипотека для всех» со ставкой 3,5% на первый 1 год, 5% на 2 года, 10,9% на 3 года (по истечению льготного периода ставка составит 26%).
При 100% оплате покупатель получает скидку от 12 до 14%. Возможна дополнительная скидка за увеличение первоначального взноса
При первоначальном взносе 20% или 30% с ежемесячным платежом 100 000 рублей можно договориться с продавцом о рассрочке до получения ключей.



Доступно бронирование выбранной квартиры. Эта услуга стоит 80 000 рублей, если выбранный апартамент бронируется на две недели, 160 000 рублей – на месяц, и 320 000 – на срок более месяца. Расходы будут учтены при окончательном расчете. Других дополнительных расходов у покупателя не будет.
Инфраструктура
У комплекса масса преимуществ в отношении инфраструктуры. Для отдыха ландшафтный парк Тюфелева роща и детский парк «Липки». Для спорта стадионы «Торпедо», «ЦСКА-Арена», бассейн «Акватория ЗИЛ».




Для шоппинга ТРЦ «Ривьера», ТЦ «Глобал Молл», мебельный центр Roomer. Вкусно покушать можно в ресторанах и фудкортах Даниловского рынка, развлечения найдут вас в крытом парке «Остров мечты», а духовной пищей можно насладиться в Культурном центре ЗИЛ.


Упомянем еще высокую транспортную доступность, поскольку мимо дома пролегают крупные городские магистрали и в шаговой доступности две станции метро и станция МЦК.
Да, на территории «Инсайдера» нет собственных образовательных и медицинских учреждений, для апартаментов они не обязательны. Но в старомосковском районе всегда рядом с домом найдутся достойная школа, поликлиника и больница.
Аргументы «за»:
- Выгодная локация
- Авторская архитектура
- Собственная набережная
- Подземный паркинг
- Речной причал под окнами
Аргументы «против»:
- Отсутствие постоянной прописки в Москве
- АЗС «Лукойл», расположенная в 18 метрах от дома
- Густонаселенный жилой комплекс «Форст» в 30 метрах от дома
- Улица Автозаводская с напряженным автомобильным трафиком в 100 метрах от дома


Аргументов «за» немного больше. Но вот что следует внимательно изучить перед покупкой – это особенности владения нежилыми помещениями, в данном случае гостиничными номерами (апартаментами). Да, они дешевле, чем квартиры, но стоимость их содержания выше. Да, они красиво выглядят, но швейная мастерская за стеной может испортить вам все впечатление от красивой жизни. Да, можно временно прописаться на срок до 5 лет, но будет невозможно получить кредит в банке, устроиться на престижную работу, зарегистрировать ИП. Все перечисленное – это плюсы или минусы? Вам решать.
