ЖК «Новое Внуково»: вдали от городского шума, но в Москве
Между деревнями Санино и Шарапово, неподалеку от Большого Свинорья на Зайцевском шоссе вырастает из земли жилой комплекс «Новое Внуково». Растет не по дням, а по часам: начали строиться в 2020 году, и уже в 2025 году 22 корпуса сдано в эксплуатацию. Еще 12 корпусов строится, а 27 проектируется. Там, где раньше на колхозных полях выращивали овощи, будет стоять мини-город примерно на 10 000 жителей.

Ландшафт и сейчас хранит следы сельской безмятежности, но все признаки городской жизни в комплексе уже проявляются в полной мере. Ничего удивительного, ведь это тоже Москва.
Как проехать
Строительство ведется по адресу Москва, Новомосковский административный округ, район Внуково, поселение Кокошкино, близ деревни Санино.


Подъехать к ЖК можно по Минскому и Киевскому шоссе. Расстояние от МКАДа (47-й и 45-й километры соответственно) около 25 километров, время в пути около получаса.

Метро есть, но не рядом. До станции «Аэропорт Внуково» 15 километров, «Рассказовка» - 17 километров, «Саларьево» - 27 километров.

Поблизости пролегает железная дорога Киевского направления. До станций четвертого центрального диаметра Кокошкино и Санино 40 минут пешего хода.


Мимо ЖК по Зайцевскому шоссе ходят городские автобусы, один из которых, № 241, заходит прямо на территорию комплекса. На нем, если сесть на улице Аэростатной, за 11 минут можно доехать до платформы Кокошкино.


Что строят
Площадь, отведенная под строительство комплексной жилой застройки с объектами социальной и инженерной инфраструктуры, превышает 96 гектаров. На ней в десять очередей по монолитной технологии будет построено более 50 многоэтажных жилых корпусов комфорт-класса. Класс энергоэффективности зданий «С» (повышенный) и «А» (очень высокий).

22 корпуса из первых трех очередей строительства уже сданы в эксплуатацию.

Ведутся работы по реализации четвертой (корпуса №№ 23 – 30) и пятой (корпуса №№ 31 – 35) очередей строительства. Проектная декларация на корпуса четвертой очереди размещена 26 января 2023 года, на корпуса пятой очереди – 15 января 2024 года.




Вместе с жильем строится и инфраструктура: пять детских садов на 1200 мест, три школы на 2750 учеников, взрослая и детская поликлиники, спортивный центр Российской федерации баскетбола. Закончить проект планируется к 2033 году.




По данным, приведенным в проектной декларации, проект разработан в проектных бюро «Самолет-Проект», «ВПК-Проект», «Пожарный инженер» и «Центр экологических инициатив». В архитектуре комплекса, выдержанного в эстетике скандинавского функционализма, ощутимо влияние работ известного финского архитектора-модерниста Алвара Аалто.
Фасады утеплят плитами из минеральной ваты толщиной 100 мм, закроют навесными вентилируемыми системами и отделают керамическим кирпичом, декоративной штукатуркой и композитными панелями. В отделке фасадов применят также стекло, дерево, керамогранит и гипсовый декор. В квартирах запроектированы балконы или лоджии




На первых этажах в специальных помещениях разместятся коммерческие структуры. Площадь таких помещений с витражным остеклением и отдельными входами с улицы от 26,7 до 231 кв.м., высота потолков до 3,9 м. Стоимость от 15 000 000 рублей. Здесь разместятся магазины, кофейни, аптеки, пункты выдачи заказов и другие элементы инфраструктуры.
Входные группы на уровне земли со сквозным проходом и панорамным остеклением оформлялись по специальному проекту, также с опорой на скандинавский минимализм. Отсюда Колористические решения в нейтральных оттенках, много света, зелени и зеркал. Достаточное внимание уделено навигации, что поможет жителям и гостям комплекса лучше ориентироваться в лифтовой зоне.




В лобби предусмотрены помещения для хранения детских колясок и велосипедов, есть уютная зона ожидания.




Здания многосекционные, от 1 до 6 секций. В одной секции на этаже от 3 до 12 квартир и два лифта. На лифте можно спуститься на минус первый этаж, где оборудуют кладовые помещения площадью от 3,1 до 6,21 кв.м. стоимостью от 234 643 рублей за кв.м.

Для хранения личного автотранспорта на территории комплекса и вне ее оборудуют парковочные места из расчета от 36 до 126 машиномест на корпус. В дальнейшем будет построено несколько многоуровневых автопаркингов за пределами территории ЖК.




Дворы, закрытые не только от автотранспорта, но и от посторонних людей, благоустроят по современным методикам с учетом потребности жителей в площадках для занятий спортом, для отдыха и детских игр. В арсенале резидентов - получится прогулка по зеленому бульвару, катание по дорожкам на велосипеде, прогулка по площади с сухим фонтаном и игровой плейхаб для детей с большой горкой «Незнайка на Луне». Центром общественной жизни станет благоустроенная набережная реки Незнайки.




Для сбора бытового мусора на специальных площадках установят контейнеры.



Квартиры с высотой потолков от 2,7 до 3,2 метра продаются в трех вариантах: без отделки, с предчистовой отделкой и с отделкой «под ключ».
- Без отделки – чистые бетонные стены для воплощения дизайнерских фантазий новосела
- Предчистовая отделка (вайт бокс) – выровненные полы, стены и потолок, разведенная электрика
- Чистовая отделка – полностью готовая к переезду квартира, оформленная в одном из четырех стилей на выбор покупателя, итальянскую сантехнику в санузле и на кухне. Возможно приобретение квартир с кухонной мебелью.
И во всех случаях - качественная металлическая входная дверь, двойные стеклопакеты в профиле ПВХ на оконных проемах размером 1,8 х 1,8 метра в 60 сантиметрах от пола и отопительные системы с вертикальной разводкой с конвекторами отечественного производителя и установкой клапана терморегулятора.




Удобство жителей обеспечит бесплатный Wi-Fi на всей территории, а их безопасность - круглосуточное видеонаблюдение за всей территорией комплекса и его периметром.
Некоторые технические данные по строящимся корпусам приведены в таблице ниже.
Таблица 1.
| №№ корп. | Кол-во этажей | Площ. застр. (кв. м.) | Кол.секц.
| Общее кол-во квартир/ кладовых /нежил. пом | Дата выдачи разр. на стр-во | Окончание срока действия разр. на стр-во | Предполагаемая дата введения в эксплуатац. |
|---|---|---|---|---|---|---|---|
| 23 | 8-9+1 подз
| 7571 | 5 | 382/177/22 | 23.01.2023 г. | 23.01.2026 г. | 3 квартал 2025 г.
|
| 24 | 7-8+1 подз | 2 | 79/41/- | ||||
| 25 | 9+1 подз | 2 | 204/80/- | ||||
| 26 | 7-9+1 подз | 3 | 146/80/- | 4 квартал 2025 г. | |||
| 27 | 8-9+1 подз
| 2 | 138/34/- | 3 квартал 2025 г. | |||
| 28 | 7-9+ 1 подз | 6941 | 5 | 332/182/19 | 30.06.2023 г. | 01.07.2026 г. | 4 квартал 2025 г. |
| 29 | 5+1 подз | 2 | 52/45/- | ||||
| 30 | 5-9+1 подз | 6 | 366/-/- | ||||
| 31 | 9+1 подз | 3833 | 3 | 224/79/11 | 28.12.2023 г. | 28.12.2026 г. | 3 квартал 2026 г.
|
| 32 | 6-9-10+1 подз | 5 | 275/144/11 | ||||
| 33 | 9+1 подз | 3164 | 1 | 88/6/- | 29.12.2023 г. | 29.12.2026 г. | 3 квартал 2026 г. |
| 34 | 9+1 подз | 1 | 93/-/- | 4 квартал 2026 г.
| |||
| 35 | 8+1 подз | 1 | 86/-/- |
В настоящее время на части строящихся корпусов ведутся фасадные работы, часть корпусов еще в земле на уровне минус первого этажа.
Передача ключей первоначально планировалась на более ранний срок, но потом передвинулась вправо:
- корпус № 23 - 30.06.2025 г./30.12.2025 г.
- корпус № 24 - 30.06.2025 г./30.12.2025 г.
- корпус № 25 - 30.06.2025 г./30.12.2025 г.
- корпус № 26 - 30.06.2025 г./30.12.2025 г.
- корпус № 27 - 30.06.2025 г./30.12.2025 г.
- корпус № 28 - 30.10.2025 г./31.05.2026 г.
- корпус № 29 - 30.10.2025 г./31.05.2026 г.
- корпус № 30 - 30.10.2025 г./31.05.2026 г.
- корпус № 31 - 31.08.2026 г./31.01.2027 г.
- корпус № 32 - 31.08.2026 г./31.01.2027 г.
- корпус № 33 - 31.08.2026 г./31.01.2027 г.
- корпус № 34 - 31.08.2026 г./31.05.2027 г.
- корпус № 35 - 31.08.2026 г./31.05.2027 г.
Кто строит
Строительство на земельных участках в кадастровом квартале 77:18:0170408 ведет ООО «Специализированный застройщик «Санино 1». Компания зарегистрирована в марте 2019 года и последние годы занималась строительством жилых корпусов в ЖК «Новое Внуково».


Земельный участок принадлежит застройщику на праве собственности, он полностью расположен в границах приаэродромной территории аэродрома «Внуково».
Участок ограничивают:
- с севера и запада - дачный поселок Кокошкино
- с юга – река Незнайка
- с востока – Зайцевское шоссе
Учредители ООО «Самолет Две Столицы» и ООО «ЭСТЕЙТ ГРУПП». ГК «Самолет» - крупнейший российский девелопер, играющий ведущую роль на рынке жилой недвижимости в московском регионе.
Несмотря на это, в работе девелопера имели место нарушения сроков сдачи объектов в эксплуатацию.


Генеральные подрядчики ООО «Жилстрой-МО» и ООО «СР-СТРОЙ».
Сайт
Сайт новостройки раскрывает особенности жилищного комплекса.

Есть данные о цене, площади, сроках сдачи квартир, о расположении и внешнем виде комплекса. Доступна информация о ходе строительства и способах покупки. Документацию по проекту следует искать на сайте провайдера.
Офиса продаж на объекте нет, он расположен по адресу г. Москва, поселение Мосрентген, деревня Дудкино, квартал №2 (бизнес парк G10) и работает ежедневно c 9 до 21 часа.
Сколько стоит
Стоимость квартир в строящихся домах отражена в таблице ниже.
Таблица 2.
| Тип квартиры | Площадь (кв. м) | Стоимость квартиры (руб.) | Стоимость одного квадратного метра (руб.) |
|---|---|---|---|
| Студия | 22,3 – 38,3 | 8 205 704 – 12 327 100 | 367 968 – 321 856 |
| Однокомнатная | 31,05 – 48,81 | 9 245 572 – 13 420 090 | 297 764 – 274 945 |
| Двухкомнатная | 51,24 – 62,04 | 15 946 877 – 11 279 803 | 311 219 – 181 815 |
| Трехкомнатная | 66,57 – 81,59 | 12 091 043 – 16 882 065 | 181 629 – 206 913 |
В среднем квадратный метр в новостройке стоит 268 013 рублей. Отметим, что в апреле 2021 года, на старте продаж, стоимость квадратного метра в новостройке равнялась 169 492 рублям.
Сравним цены на двухкомнатные квартиры с отделкой и без в строящихся жилых комплексах комфорт-класса в Новой Москве.
Таблица 3.
| Название ЖК | Метро | Площадь квартир (кв. м.) | Стоимость квартир (руб.) | Стоимость одного кв.м. (руб.) | Отделка | Срок сдачи |
|---|---|---|---|---|---|---|
| «Прокшино» | «Прокшино» | 36,4 | 12 341 420 | 339 050 | Нет | 1 квартал 2026 г. |
| «Саларьево Парк» | «Саларьево» | 52,0 | 16 707 600 | 321 300 | Есть | 2 квартал 2026 г. |
| «Скандинавия» | «Коммунарка» | 36,2 | 11 338 202 | 313 210 | Нет | 4 квартал 2026 г. |
| «Новое Внуково» | «Рассказовка» | 51,24 | 15 946 877 | 311 219 | Есть | 4 квартал 2026 г. |
| «Переделкино Ближнее» | «Рассказовка» | 53,2 | 14 760 489 | 277 452 | Нет | 2 квартал 2026 г. |
| «Новые Ватутинки» | «Теплый стан» | 36,6 | 8 586 900 | 234 614 | Нет | 4 квартал 2026 г. |
| «Середневский лес» | «Филатов луг» | 56,8 | 11 643 360 | 204 988 | Есть | 3 квартал 2026 г. |
«Новое Внуково» по стоимости квадратного метра держится в серединке.
Планировки
На продажу выставлены квартиры-студии, одно-, двух- и трехкомнатные квартиры площадью от 22,3 до 81,59 кв.м.







Миниатюрная студия располагает входной зоной площадью 3,9 кв.м., совмещенным санузлом площадью 3,13 кв.м. и универсальным помещением площадью 15,23 кв.м.

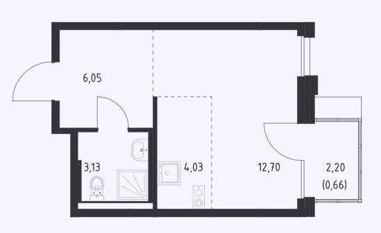
Для студии запроектирована входная зона площадью 6,05 кв.м., совмещенный санузел площадью 3,13 кв.м., универсальное помещение площадью 16,73 кв.м. и балкон площадью 2,2 кв.м.

У данной студии имеется входная зона площадью 7,93 кв.м., совмещенный санузел площадью 5,86 кв.м., универсальное помещение площадью 21,8 кв.м., разделенное на зоны укороченной стеной. Есть кладовая/гардеробная площадью 2,44 кв.м.

Однокомнатная квартира располагает входной зоной площадью 4,14 кв.м., совмещенным санузлом площадью около 3,87 кв.м., кухней площадью 10,55 кв.м. и спальней площадью 10,16 кв.м. А также гардеробной площадью 2,33 кв.м. Расположение окон одностороннее.

Однокомнатная квартира оснащена входной зоной площадью около 6,32 кв.м., совмещенным санузлом площадью 3,86 кв.м., кухней площадью 19,8 кв.м. и спальней площадью 10,95 кв.м. Расположение окон угловое, на кухне два окна.

Однокомнатная квартира распашной планировки располагает входной зоной площадью 4,94 кв.м., совмещенным санузлом площадью 4,18 кв.м., кухней площадью 19,55 кв.м. и спальней площадью 19,48 кв.м. Имеется балкон площадью 2,2 кв.м.

Двухкомнатная квартира линейной планировки имеет входную зону площадью 7,3 кв.м. (с учетом внутреннего коридора), совмещенный санузел площадью 3,96 кв.м., кухню площадью 10,51 кв.м. и две спальни площадью 10,72 и 16,38 кв.м. плюс гардеробная площадью 2,37 кв.м. Расположение окон одностороннее.

Распашная двухкомнатная квартира оснащена входной зоной площадью 9,18 кв.м. (с учетом внутреннего коридора), двумя санузлами площадью 2,79 и 2,89 кв.м., кухней площадью 13,87 кв.м. и двумя спальнями площадью 13,08 и 15,6 кв.м. Расположение окон двухстороннее.

Для данной двухкомнатной квартиры запроектирована входная зона площадью 11,42 кв.м. (с учетом внутреннего коридора), два санузла площадью 2,74 и 3,31 кв.м., кухня площадью 17,82 кв.м. и две спальни площадью от 10,53 до 10,67 кв.м. бонусом идет гардеробная площадью 5,55 кв.м. Расположение окон угловое, есть помещения с двумя окнами.

Трехкомнатная квартира располагает входной зоной площадью 8,81 кв.м. (с учетом внутреннего коридора), двумя санузлами площадью помещений 2,79 и 4,39 кв.м., кухню площадью 15,98 кв.м. и три спальни площадью от 10,22 до 13,6 кв.м. Расположение окон угловое, в одной из спален два окна.

Трехкомнатная квартира оснащена входной зоной площадью 13,31 кв.м. (с учетом внутреннего коридора), тремя санузлами с площадью помещений от 1,9 до 2,89 кв.м., кухней площадью 12,18 кв.м. и тремя спальнями площадью от 13,1 до 14,48 кв.м. Расположение окон на две стороны, имеется гардеробная площадью 3,71 кв.м

Трехкомнатная квартира располагает входной зоной площадью 10,36 кв.м. (с учетом внутреннего коридора), двумя санузлами площадью 1,61 до 3,71 кв.м., кухню площадью 15,69 кв.м. и три спальни площадью от 14,91 до 17,92 кв.м. А также имеется балкон площадью 2,1 кв.м. Расположение окон двухстороннее.
Как купить
Покупка квартиры проходит в рамках федерального закона №214-ФЗ. Покупатель и застройщик заключают договор долевого участия в строительстве многоквартирного дома, покупатель вносит необходимые денежные средства на счет эскроу в Сбербанке и регистрирует договор в Росреестре. Возможны расходы покупателя на оплату регистрации.
При необходимости использования заемных средств застройщик сможет дать покупателю дельный совет по выбору банка с наиболее выгодными условиями ипотеки. Например, ипотека 3,5% на 1 год, при которой ежемесячный платеж в первый год составит чуть больше 18 000 рублей. И только потом вступит в действие обычная процентная ставка в размере 26% годовых.

Возможно бронирование выбранной квартиры на срок 14 дней. Услуга стоит 10 000 рублей, платеж будет учтен при окончательном расчете.
Застройщик предлагает беспроцентную рассрочку на 10 лет с равными платежами на весь срок. Нужно только внести первоначально не менее 30% стоимости квартиры. Можно получить рассрочку на условиях последующего перехода на стандартную ипотеку под 12% годовых на первые три года.
Квартиры в новостройках от «Самолет» можно менять на более просторные и удобные с точки зрения локации. Можно обменять старую квартиру на новую, вложив средства, полученные в результате сделки с застройщиком, в улучшение жилищных условий.
До 15 июня работает акция, в рамках которой квартиру можно взять в беспроцентную рассрочку на 36 месяцев при первоначальном взносе от 15%. При 100% оплате можно получить скидку до 23 % от стоимости квартиры.
Инфраструктура
Если говорить об инфраструктуре, то здесь уместно вспомнить лозунг северокорейских коммунистов «опора на собственные силы».




Потому что все далеко, кроме небольших торговых точек и предприятий сферы услуг на территории ЖК.


Это не так уж мало, если учесть, что здесь будут и школы, и детские сады и поликлиника и даже баскетбольный центр Российской федерации баскетбола, расположенный в двух шагах от жилых корпусов.




Но все остальное – на личном автомобиле, на электричке, на автобусе.


Река Незнайка только называется рекой, рядом с домами это просто пойменная зона, на которой и воды-то не видно. Речушка предъявляет себя только за шоссе.


Есть поблизости небольшая зеленая зона - парк «Ручеек».
Любителей путешествий порадует близость аэропорта Внуково. А любителей тишины – огорчит, потому что самолеты заходят на посадку довольно близко от ЖК.

Заключение
Аргументы «за»
- московская прописка
- разумная этажность корпусов
- готовые дома как образец жилого фонда
- известный застройщик
- хорошая транспортная доступность
Аргументы «против»
- слабая инфраструктура
- удаленность от центра Москвы
- близость шоссе и аэропорта
Тем не менее, здесь нет суеты мегаполиса, ощущается определенное умиротворение от созерцания горизонта. Да и цена радует. Можно положить в «избранное»
