ЖК «Союз»: где спорт, там и красота
Московские новостройки неудержимо стремятся к индивидуальности. Оно и понятно: предложений на рынке много, чтобы успешно продавать квадратные метры, надо как-то выделиться из общей массы. Одни застройщики делают маркетинговый акцент на локации (дом у реки, у леса, у метро), другие – на качестве жизни (продают не квадратные метры, а сегмент истории), третьи – на богатстве инфраструктуры (указывая на близость одновременно и ВДНХ, и Большого театра).
Но чтобы «ключом» к интересу покупателей стал спорт – такой подход вы найдете только в жилом спортивно-оздоровительном кластере «Союз» его еще называют «кварталом здоровой жизни») на северо-востоке Москвы.

Как доехать
Адрес новостройки: Москва, Северо-Восточный административный округ, внутригородская территория муниципальный округ Ростокино, улица Сельскохозяйственная, вл. 26.



От МКАДа (76-й километр) до новостройки 13 километров, на автомобиле - 15 минут. А до центра Москвы - 10 километров, на автомобиле 25 минут.
В шаговой доступности расположены станция МЦК «Ботанический сад», станции метро «Ботанический сад» и «ВДНХ».




А по улице Вильгельма Пика и Сельскохозяйственной, прямо под окнами ЖК, движутся многочисленные городские автобусы.



Что строят
На территории площадью 2,4 гектара, ранее принадлежавшей учебно-спортивному комплексу «Искра», завершается строительство шести односекционных многоэтажных башен с общим стилобатом. Проект обозначен в документах как «многоэтажный жилой комплекс с подземным паркингом, общественно-деловым центром и физкультурно-оздоровительным комплексом». Класс новостройки «премиум», технология строительства – монолит. Класс энергоэффективности В (высокий).
Извещение о начале строительства было подано 15 июля 2022 года. Завершение проекта намечено на 2026 год.


Определено три этапа строительства:
– первый этап – корпуса №№ 1 и 2, подземный паркинг
– второй этап – корпуса №№ 3 и 4
– третий этап – корпуса №№ 5 и 6
Эксклюзивный архитектурный облик комплекса создали специалисты бюро Катерины Грень. По их замыслу яркие, заметные издалека башни, оснастят навесным вентилируемым фасадом с утеплением и отделкой из алюминия, латуни, дерева и стекла. Цветовая гамма - теплые тона дерева.




Комфортность проживания подчеркивается наличием балконов и террас, откуда в любую сторону света открываются прекрасные виды на Москву. Этот вид комфорта предоставлен в ассортименте: французские балконы, авторские балконы с прозрачным остеклением и реечным ограждением, двойные и опоясывающие балконы, террасы площадью до 60 кв.м. на верхних этажах
У собственников будет возможность установить собственный кондиционер, для этого предусмотрены специальные ниши, скрытые под навесным фасадом. Но лучше сразу купить у застройщика услугу центрального кондиционирования воздуха квартиры с особой системой очищения воздуха.




Во входных зонах, готовых поспорить по уровню комфорта с лобби пятизвездочных отелей, разместятся зал ожидания с камином, зона коворкинга, круглосуточный ресепшен, пункт охраны, комната матери и ребенка, гостевой санузел, колясочная, постамат, переговорные и детская игровая комната. Высота потолков до 5 метров.




Жильцы смогут пользоваться сервисом услуг и торговли, не выходя из дома. С этой целью на первых этажах построят специализированные помещения площадью от 25,5 до 686 кв.м. и высотой потолков 4,61 метра для работы коммерческих структур. Кроме того, на территории в специально построенном здании откроют ресторан грузинской кухни «Шабада» от Сосо Павлиашвили.

Ответственность за благоустройство дворового пространства взяло на себя бюро Scape. Чего тут только не будет:
– водопад
– фруктовый сад
– зеленые аллеи
– спортивные площадки
– голубятня
– прогулочная сосновая аллея
– цветущий розарий
– беговая дорожка с ортопедическим покрытием
– велосипедная дорожка
– площадка для воркаута и йоги
– зона для пикников
А также спортивные, медицинские и рекреационные зоны, прогулочные маршруты для пешеходов и велосипедистов и другие общественные места.




Всего территория комплекса охватывает около семи гектаров земли, причем три четверти участка отведены под спортивные объекты и озеленение.
Сбор бытового мусора организуют в специальных помещениях внутри зданий.
Высота башен 23 – 24 этажа. На одном этаже построят от 8 до 13 квартир, связь между этажами обеспечат три или четыре лифта, в том числе один грузопассажирский. На лифте можно будет спускаться на подземный этаж.
В стилобате оборудуют паркинг на 552 машиномест и 68 кладовых. Площадь машиномест от 13,3 до 16,0 кв.м., площадь кладовых от 2,2 до 29,2 кв.м. Высота потолков 3 метра. На минус первом этаже оборудуют пункты зарядки электромобилей и автомойку на три бокса. Здесь же организуют сервис по сезонному хранению автомобильных шин.
Кроме того, на территории ЖК и вне ее оборудуют 273 открытых машиноместа для временного хранения автомобилей.
Квартиры с высотой потолков 3,08 метра сдаются без отделки в свободной планировке. Будут установлены качественные металлические двери, окна с открывающимися створками и моллированным стеклом, конвекторная система отопления. Все самого высокого качества, менять не придется.
Служба охраны обеспечит круглосуточное видеонаблюдение на придомовой территории, в лобби, паркинге и лифтовой зоне. Доступ на территорию и в здания - по электронной точке доступа с системами распознавания по лицу, отпечатку пальца и электронной карте. Въезд в паркинг по системе распознавания номеров автомобилей.
Управляющая компания будет определена после введения домов в эксплуатацию.
В таблице № 1 приведены некоторые технические данные по комплексу.
Таблица 1.
| №№ корп. | Кол-во этажей | Площ. застр. (кв. м.) | Кол.секц.
| Общее кол-во квартир/машиномест/кладовых /нежил. пом. | Дата выдачи разр. на стр-во | Окончание срока действия разр. на стр-во | Предполагаемая дата введения в эксплуатац. |
|---|---|---|---|---|---|---|---|
| 1 | 23+1 подз | 2 936 | 1 | 225/-/-/12 | 15.06.2022 г. | 15.02.2026 г. | 2 квартал 2025 г.
|
| 2 | 23+1 подз | 1 | 225/-/-/2 | 15.06.2022 г. | 15.02.2026 г. | 2 квартал 2025 г. | |
| 3 | 24+1 подз | 2 117 | 1 | 190/-/-/5 | 15.06.2022 г. | 15.02.2026 г. | 3 квартал 2025 г. |
| 4 | 23+1 | 1 | 202/-/-/1 | 15.06.2022 г. | 15.02.2026 г. | 3 квартал 2025 г. | |
| 5 | 23+1 подз | 2 506 | 1 | 216/-/-/12 | 15.06.2022 г. | 15.02.2026 г. | 1 квартал 2026 г. |
| 6 | 23+1 подз | 1 | 218/-/-/10 | 15.06.2022 г. | 15.02.2026 г. | 1 квартал 2026 г. | |
| 7 (паркинг) | 1 | 21 235 | - | -/552/68/- | 15.06.2022 г. | 15.02.2026 г. | 2 квартал 2025 г. |
В настоящее время на корпусах первой очереди закончены все фасадные работы, ведутся работы по благоустройству двора и лаундж-зон. Продолжается возведение корпусов второй и третьей очереди, строится физкультурно-оздоровительный корпус, общественно-деловой центр и грузинский ресторан.
Планируемые сроки выдачи ключей:
– корпус № 1 – 30.09.2025 г.
– корпус № 2 – 30.09.2025 г.
– корпус № 3 – 30.09.2026 г
– корпус № 4 – 31.12.2026 г.
– корпус № 5 – 31.12.2026 г.
– корпус № 6 – 31.12.2026 г.
– корпус № 7 (паркинг) – 30.09.2025 г.
Кто строит
На земельном участке с кадастровым номером 77:02:0018007:4602 ведет строительство ООО «Специализированный застройщик «Искра». Компания создана в 2017 году, земля принадлежит ей на праве аренды. Жилищного строительства в предыдущие три года компания не вела.




Ранее на объекте размещались хозяйственные помещения спортивного комбината, которые пришлось демонтировать.

Участок ограничивают:
– с запада - спортивные площадки учебно-спортивного комплекса «Искра»
– с юга - дворец культуры им. Луначарского (объект культурного наследия) и общеобразовательная школа № 1499
– с севера - река Яуза
– с востока – существующий жилой комплекс («хрущевки»)
Учредителем является АО «Группа «Родина». Компания создана по инициативе российского бизнесмена Натана Винера, поставившего перед собой задачу формирование жилых районов с развитой спортивной инфраструктурой.
Девелопер проекта, инвестиционно-девелоперский холдинг «Группа «Родина», уже десять лет работает на российском рынке недвижимости. Входит в пятерку самых надежных застройщиков жилых комплексов премиум-класса, в десятку надежных застройщиков Москвы. Проект спортивно-оздоровительного кластера «СОЮЗ» в 2024 году отмечен премией Home Estate Award как лучший проект премиум-класса Москвы по оценке покупателей.
Несмотря на общепризнанную надежность и амбициозность компании, у «Союза» возникали некоторые проблемы со сроками строительства.


Генподрядчик ООО «Инновационный кластер».
Сайт
На официальном сайте ЖК «Союз» содержится подробная и достоверная информация о ценах на квартиры, их планировке, способах покупки. Особый акцент веб-дизайнеры сделали на описании внешнего вида зданий и прилегающей территории, показе преимуществ здорового образа жизни в спортивно-оздоровительном кластере.
Больше узнать о новостройке можно в офисе, находящемся рядом со строительной площадкой по адресу Москва, Сельскохозяйственная улица, владение 26. Офис работает ежедневно с 9 до 21 часа.


Сколько стоит
Таблица 2.
| Тип квартиры | Площадь (кв. м) | Стоимость квартиры (руб.) | Стоимость одного квадратного метра (руб.) |
|---|---|---|---|
| Студия | 27,4 – 39,8 | 17 577 100 – 22 992 460 | 641 500 – 577 700 |
| Однокомнатная | 40,3 – 55,1 | 24 901 370 – 67 199 960 | 617 900 – 1 219 600 |
| Двухкомнатная | 60,2 – 74,6 | 38 822 980 – 51 653 040 | 644 900 – 692 400 |
| Трехкомнатная | 77,8 – 105,7 | 47 302 000 – 75 173 340 | 607 995 – 711 195 |
| Четырехкомнатная | 127,9 | 86 869 680 | 702 655 |
Средняя стоимость квадратного метра равна 711 850 рублям.
Отметим, что в августе 2022 года квадратный метр в новостройке в среднем стоил 500 968 рублей.
В следующей таблице для сравнения приведены цены на двухкомнатные квартиры с отделкой и без в строящихся домах бизнес- и премиум-класса в Москве.
Таблица 3.
| Название ЖК | Ближайшая станция метро или МЦК | Площадь Квартир (кв. м.) | Стоимость квартир (руб.) | Стоимость одного кв.м. (руб.) | Отделка | Срок сдачи |
|---|---|---|---|---|---|---|
| «Союз» | «Ботанический сад» | 60,2 | 38 822 980 | 644 900 | Нет | 3 квартал 2025 г. |
| «Остров» | «Терехово» | 56,9 | 37 588 140 | 660 600 | Нет | 3 квартал 2025 г. |
| «Сидней Сити» | «Селигерская» | 54,6 | 30 704 856 | 562 360 | Есть | 3 квартал 2025 г. |
| «Инди Тауэрс» | «Зорге» | 49,7 | 27 495 084 | 553 221 | Нет | 4 квартал 2026 г. |
| «Дмитровское небо» | «Верхние Лихоборы» | 54,9 | 27 359 744 | 498 356 | Нет | 3 квартал 2025 г. |
| «Апсайд Тауэрс» | «Бутырская» | 66,1 | 30 265 788 | 457 878 | Есть | 3 квартал 2026 г. |
| «Скай Гарден» | «Тушинская» | 57,9 | 20 873 796 | 360 514 | Есть | 2 квартал 2025 г. |
| «Сидней Сити» | «Шелепиха» | 66,3 | 28 979 730 | 437 100 | Есть | 3 квартал 2025 г. |
По стоимости квадратного метра «Союз» явно рвется в лидеры.
Планировки
На продажу выставлены студии, одно-, двух-, трех- и четырехкомнатные квартиры площадью от 27,4 до 127,9 кв.м.







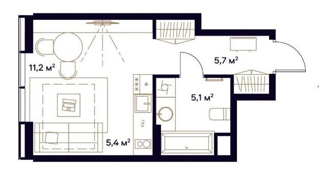
Миниатюрная студия с входной зоной 5,7 кв.м., совмещенным санузлом площадью 5,1 кв.м. и универсальным помещением площадью 16,6 кв.м.

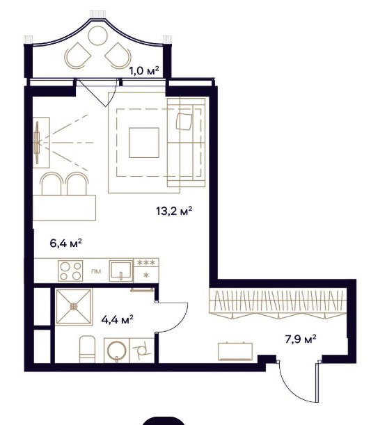
Студия с входной зоной площадью 7,9 кв.м. совмещенным санузлом площадью 4,4 кв.м. и универсальным помещением площадью 19,6 кв.м.

Более просторная студия с входной зоной площадью 3,2 кв.м., совмещенным санузлом площадью 4,6 кв.м. и универсальным помещением площадью 26,8 кв.м. Имеется гардеробная площадью 2,9 кв.м. и балкон площадью 4,6 кв.м.

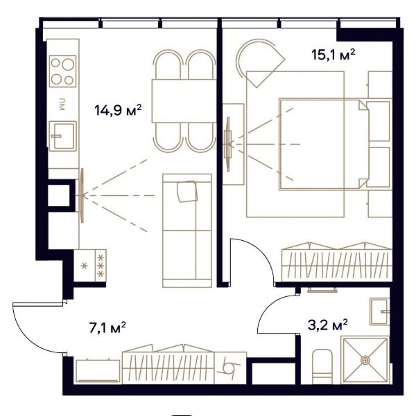
Однокомнатная квартира в классическом формате с входной зоной площадью 7,1 кв.м., совмещенным санузлом площадью 3,2 кв.м., кухней площадью 14,9 кв.м. и спальней площадью 15,1 кв.м.

Все традиционно: входная зона площадью 6,8 кв.м., совмещенный санузел площадью 4,5 кв.м., кухня площадью 19,0 кв.м. и спальня площадью 15,4 кв.м. Плюс балкон площадью 4,6 кв.м.

Оригинальная однокомнатная квартира с входной зоной площадью 7,2 кв.м., совмещенным санузлом площадью 5,8 кв.м., кухней площадью 21,9 кв.м. и спальней площадью от 15,5 кв.м. Имеется гардеробная площадью 4,7 кв.м. Оригинальность квартиры заключатся в том, что санузел надежно спрятан от посторонних глаз: путь к нему лежит через спальню и гардеробную.

Двухкомнатная квартира с входной зоной площадью 5,5 кв.м., двумя санузлами площадью 2,4 и 5,6 кв.м., кухней площадью 17,4 кв.м. и двумя спальнями площадью 13,1 и 13,3 кв.м., имеется гардеробная площадью 2,9 кв.м. Расположение окон одностороннее.

Квартира располагает входной зоной площадью 5,9 кв.м., двумя санузлами площадью 3,2 и 6,1 кв.м., кухней-гостиной площадью 20,3 кв.м. и двумя спальнями площадью 12,5 и 15,0 кв.м. Одна из спален с собственным санузлом. Плюс балкон площадью 6,8 кв.м. Расположение окон одностороннее, , некоторые стены расположены под углом друг к другу.

В проекте двухкомнатной квартиры видим входную зону площадью 7,4 кв.м. (с учетом внутреннего коридора), два санузла площадью 4,5 и 4,7 кв.м. (один из них расположен в спальне), кухню-гостиную площадью 18,6 кв.м. и две спальни площадью 13,9 и 17,2 кв.м. Имеется два балкона площадью 1,6 и 3,2 кв.м. и две гардеробные площадью 2,8 и 3,1 кв.м. Расположение окон одностороннее.

В трехкомнатной квартире запроектирована входная зона площадью 6,6 кв.м., два санузла площадью 2,2 и 5,7 кв.м., кухня площадью 16,2 кв.м. и три спальни площадью от 10,4 до 13,6 кв.м. Имеются три балкона площадью от 1,6 кв.м. до 3,2 кв.м., гардеробная площадью 2,8 кв.м. Расположение окон угловое, есть помещение с двумя окнами.

Трехкомнатная квартира запроектирована с входной зоной 8,2 кв.м., двумя санузлами с площадью помещений от 4,1 до 5,3 кв.м., кухней-гостиной площадью 24,2 кв.м. и тремя спальнями площадью от 10,1, до 15,2 кв.м., в их числе одна в формате «мастер». А также гардеробная площадью 3,2 и два балкона площадью 3,2 кв.м.

Трехкомнатная квартира располагает входной зоной площадью 9,0 кв.м., тремя санузлами с площадью помещений от 3,3 до 5,8 кв.м., кухней площадью 28,0 кв.м., тремя спальнями площадью от 13,0 до 14,3 кв.м. Плюс гардеробная площадью 3,2 кв.м. и три балкона площадью от 1,6 до 3,2 кв.м. Есть мастер-спальня. Расположение окон угловое, есть помещения с двумя окнами.

Четырехкомнатная квартира – это входная зона площадью 7,7 кв.м., три санузла с площадью помещений от 4,1 до 5,5 кв.м. (один из них в спальне), кухня площадью 36,9 кв.м. и четыре спальни площадью от 13,2 до 16,0 кв.м. А также две гардеробные площадью 3,2 и 4,6 кв.м. и три балкона площадью от 1,6 до 3,2 кв.м. Расположение окон угловое, есть помещения с двумя окнами. Некоторые помещения имеют неквадратную форму.
Как купить
Покупка квартиры происходит в полном соответствии с федеральным законом № 214-ФЗ. Заключается договор долевого участия и после его регистрации в госорганах (за счет застройщика) покупатель становится полноправным собственником приобретенных квадратных метров. Деньги покупателя размещаются на эскроу счете в банке АО ДОМ.РФ.
Оплачивать можно как полностью собственными средствами, таи и с привлечением банковского кредита. Выбрать банк поможет девелопер, который работает с 14 крупнейшими банками.
Например, можно получить кредит до 12 000 000 рублей на семейную ипотеку от Банка ВТБ по ставке 5,5% сроком на 30 лет. Ежемесячный платеж составит 72 000 рублей.
Можно забронировать выбранную квартиру сроком на две недели с фиксацией цены, эта услуга стоит 200 000 рублей, которые входят в стоимость.
Доступна беспроцентная рассрочка с внесением первоначального платежа 20 или 30% стоимости квартиры. Денежные средства вносятся равными платежами ежемесячно или ежеквартально вплоть до сдачи дома в эксплуатацию.
Инфраструктура
Территория обладает более чем достойной инфраструктурой.




Две станции метро в шаговой доступности, спортивный комплекс мирового уровня (20 видов спорта!) – в «тапочной» доступности, школы, больницы, торговые центры – все практически рядом. Плюс коммерческие объекты непосредственно на территории ЖК.




Через дорогу – крупнейший в мире Ботанический сад с уникальным розарием, чуть дальше – самый крупный в России выставочный центр (ВДНХ) с канатной дорогой и колесом обозрения, под окнами – река Яуза.




За рекой два крупных зеленых массива - «Сад будущего» и Леоновская роща.




Ярким акцентом данной локации является Всероссийский государственный институт кинематографии (ВГИК).


На личном транспорте можно мчаться по Северо-Восточной хорде Московского скоростного диаметра, на городских автобусах – по улице Вильгельма Пика и проспекту Мира.




Резюме
У проекта очень много плюсов. Это:
– Уникальная архитектура
– Высокая транспортная доступность
– Прописка в Москве
– Безупречная экологическая обстановка
– Развитая инфраструктура района Ростокино
А вот недостатков не обнаружено. Цену же обсуждать здесь не будем – это критерий глубоко личный и непубличный. Отметим только, что ни резиденты, ни инвесторы разочарованы покупкой, скорее всего, не будут.
