ЖК «Ситимикс»: уютные апартаменты в тихом месте
Говорят, западные районы Москвы отличаются благополучной экологией и прекрасной транспортной доступностью. Наверное, так оно и есть. Метро, просторные автомагистрали, парки и зеленые зоны Один из них – район Тропарево-Никулино, в котором с особой охотой реализуют свои проекты столичные девелоперы. Здесь можно найти новое жилье на любой вкус и кошелек. Но если вам не нужна московская прописка – обратите внимание на апартаменты в МФК «Ситимикс», который строится неподалеку от улицы Никулинской на стыке Боровского и Востряковского шоссе.

Как проехать
Строительство ведется по адресу город Москва, Западный административный округ, улица Никулинская, владение 11 Г.


От МКАДа до новостройки всего полтора километра, можно доехать за 3 минуты. А от МФК до центрального детского магазина на Лубянке ехать около часа. Расстояние небольшое, около 18 километров, но пробки…




В достаточной мере доступен общественный транспорт. Станция «Озерная» расположена в 18 минутах пешего хода, станция Юго-Западная – в 30 минутах.


По улице Никулинской и Востряковскому шоссе движется большое количество городских автобусов.




Что строят
На земельном участке площадью три гектара строится пять односекционных зданий комфорт-класса высотой 21 этаж. Класс энергоэффективности В (высокий), технология строительства монолитная.
На языке строителей объект называется «многофункциональный комплекс с апартаментами квартирного типа, офисными помещениями, подземной автостоянкой и пристроенными общественными помещениями». Проектная декларация была впервые размещена в Интернете 12.05.2022 года.

Строительство ведется в два этапа.
- 1 этап – гостиничные корпуса №№ 1 - 3, двухуровневая наземная автостоянка в стилобате с пристроенными общественными помещениями, центральный тепловой пункт и дизель-генераторная установка
- 2 этап - офисные корпуса №№ 4 и 5
Три корпуса первого этапа сданы в эксплуатацию и заселены, продажи помещений ведутся в корпусах №№ 4 и 5.




Архитектурный облик комплекса, судя по проектной декларации, формировался коллективно. В этом процессе принимали участие:
- ООО «КТС-ПРО ЕКТ»
- ООО «Проектное бюро № 1»
- ООО «Проектная мастерская Эр 3»
- ООО «Консалт 01»
- ООО « Архитектурный Диалог с Мегаполисом»
- ООО «Апсис Глоб»
На внешних стенах корпусов установят сертифицированную фасадную систему с утеплением плитами из минеральной ваты общей толщиной 160 мм и облицовкой фиброцементными или хризолитцементными панелями. Витражные конструкции заключат в алюминиевые профили с однокамерным стеклопакетом. На стенах установят корзины для кондиционеров. Лоджии или балконы в квартирах проектом не предусмотрены.




В стилобате будут построены помещения для работы коммерческих структур площадью от 24,64 до 69,29 кв.м. Стоимость квадратного метра в таких помещениях начинается от 211 000 рублей.
Во входной зоне разместятся служба портье, помещения для хранения багажа, сервисная комната, зона отдыха, санузел, комната для совещаний. На этажах предусмотрены комнаты для горничных.
В общей для всех корпусов стилобатной части будет оборудована автопарковка и внеквартирные кладовые. Для корпусов первой очереди запроектировано 395 машиномест (включая механизированные), для второй – 40 машиномест. Кроме того, еще 26 машиномест обустроят под открытым небом. Площадь машиномест от 8,81 до 26,28 кв.м., площадь кладовых от 3,28 до 12,64 кв.м. Парковочные места выставлены на продажу, их стоимость от 1 400 000 до 1 800 000 рублей.




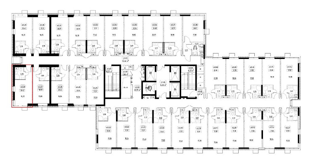
На одном этаже запроектировано от 31 до 34 помещений и 4 скоростных грузопассажирских лифта от европейского производителя. Этажи поровну разделены на две секции, имеющие отдельные входы.
Дворовое пространство будет небольшим, но хорошо благоустроенным. Оно расположится на крыше стилобата между корпусами на высоте 7 метров от земли. Там оборудуют места для отдыха, детские и спортивные площадки, покрытые резиновой крошкой, с игровыми и спортивными конструкциями, разбиты газоны, высажены кустарники и деревья.


Сбор бытового мусора организуют на двух специальных площадках на территории, где установят шесть мусорных контейнеров.
Помещения продаются с чистовой отделкой. На окнах увеличенного размера установят оконные блоки из профиля ПВХ с двухкамерными стеклопакетами с мягким селективным покрытием, на входе – качественную металлическую дверь. Отопительные системы радиаторного типа с нижней разводкой. Высота потолков в помещениях 3 метра.
В отделку входит:
- установка внутренних перегородок в санузлах
- выравнивание стен
- поклейка обоев под покраску
- укладка керамогранита на стенах в санузлах
- устройство натяжных потолков
- укладка ламината и керамогранитной плитки на полу
- установка плинтусов
- установка подоконников и пластиковых оконных откосов
- установка сантехнического оборудования в санузле
- разводка электросетей с установкой оконечного оборудования
- закладные для ввода в помещение сетей слаботочных систем и домофона
Не будет только душевой кабины в санузле и мебели на кухне. Зато на сетях электро-, водо- и теплоснабжения будут установлены счетчики с возможностью автоматического сбора данных.
Для доступа в здания применят домофонную систему «Rubetek». Управлять комплексом будет компания, аффилированная с застройщиком. Коммунальные платежи за помещение площадью 22 кв.м. (отопление, электричество, охрана, расход воды) составят фиксированную сумму от 4 200 до 4 500 в месяц.
В таблице ниже приведены некоторые технические данные по корпусам.
Таблица 1.
| №№ корпуса | Кол-во этажей | Общая площ. застр. (кв. м.) | Кол.секц.
| Общее кол-во помещений/ машиномест | Дата выдачи разр. на стр-во | Окончание срока действия разр. на стр-во | Предполагаемая дата введения в эксплуатац. |
|---|---|---|---|---|---|---|---|
| 4 | 21+1 подз | 2164 | 1 | 1371/40 | 11.12.2015 | 21.12.2021 продление до 30.04.2025 продление до 30.09.2025 | 2 квартал 2025 года |
| 5 | 21+1 подз | 1 |
Передача ключей собственникам запланирована на 31.12.2025 года.
Кто строит
Строительство на арендованном земельном участке с кадастровым номером 77:07:0014010:58 ведет ООО «КСАР-СЕРВИС», созданное в августе 1994 года. В трехлетний период до момента подачи проектной декларации компания вела строительство корпусов первой очереди МФК «Ситимикс».

Участок ограничен:
- с севера - Боровским шоссе
- с запада – территорией Востряковского кладбища,
- с юга и востока – складскими корпусами и ландшафтным заказником «Тропаревский».
Раньше (в 90-е годы) на этом месте действовал строительный рынок «Никулинский».
Земельный участок полностью расположен в границах приаэродромной территории аэродрома «Внуково».
Учредитель застройщика – ООО «Апсис Актив». Девелопер проекта группа компаний «Апсис Глоб». Компания APSIS GLOBE создана в 2008 году. Она осуществляет девелопмент проектов жилой и коммерческой недвижимости полного цикла. А именно:
- поиск инвестиционно-привлекательных участков
- юридическая экспертиза
- разработка концепции
- проектирование и строительство
- реализация недвижимости
- управление объектами и их эксплуатация

Генеральный подрядчик ООО «Апсис Финанс».
Сайт
Сайт новостройки помогает потенциальному покупателю получить предметное представление об объекте. Выложен генеральный план, документация, планировки и цены помещений, варианты отделки и фотографии с места строительства.

Описаны расположение и инфраструктура проекта, способы оплаты.


За более подробными сведениями можно обратиться в офис продаж, который находится непосредственно на территории МФК по адресу Востряковское шоссе дом 7 строение 6. Офис работает ежедневно, в будние дни с 10 до 20 часов, в выходные с 10 до 18 часов.


Кстати, в офисе продаж можно увидеть макет комплекса и материалы, которыми будет отделано помещение.



Сколько стоит
Таблица 2.
| Тип помещения | Площадь (кв. м) | Стоимость помещения (руб.) | Стоимость одного квадратного метра (руб.) |
|---|---|---|---|
| Однокомнатный | 20,42 – 25,76 | 6 477 420 – 8 450 000 | 317 209 – 328 028 |
Средняя цена квадратного метра в новостройке составляет 322 618 рублей.
Сравним цены на однокомнатные апартаменты с отделкой в жилых комплексах комфорт-класса в Москве
Таблица 3.
| Название ЖК | Ближайшая станция метро | Площадь помещ. (кв. м.) | Стоимость помещ. (руб.) | Стоимость одного кв.м. (руб.) | Отделка | Срок сдачи |
|---|---|---|---|---|---|---|
| «Нью Форм Аминьевское» | «Аминьевская» | 14,3 | 5 335 971 | 373 145 | Есть | 2 квартал 2026 г. |
| «Ситимикс» | «Озерная» | 20,42 | 6 477 420 | 317 209 | Есть | 2 квартал 2025 г. |
| «Большая Академическая» | «Окружная» | 32,7 | 10 130 460 | 309 800 | Есть | 1 квартал 2026 г. |
| «Варшавские ворота» | «Аннино» | 41,3 | 11 484 291 | 278 070 | Есть | 2 квартал 2026 г. |
| «Ситимикс Новокосино» | «Новокосино» | 22,64 | 5 546 800 | 245 000 | Есть | 4 квартал 2025 г. |
| «Тропарево Парк» | «Румянцево» | 33,89 | 7 542 733 | 222 565 | Есть | 4 квартал 2025 г. |
| «Движение Говорово» | «Говорово» | 36,53 | 5 953 477 | 162 975 | Есть | 2 квартал 2025 г. |
В данном рейтинге наш МФК занимает почетное второе место.
Планировки
В продаже однокомнатные помещения площадью от 20,42 до 25,76 кв.м.





Помещения спроектированы с предельной ясностью и простотой. Совмещенный санузел площадью от 3,7 до 3,9, комната площадью от 16,72 до 21,28 и окно, иногда - угловое. И это все о них.
Как купить
Продажа помещений осуществляется в соответствии с федеральным законом № 214-ФЗ. Между застройщиком и покупателем заключается договор долевого участия в строительстве здания, и покупатель вносит необходимые средства на счет эскроу в ПАО Сбербанк РФ.
Договор регистрируется в Росреестре за счет застройщика. Для оплаты можно использовать заемные средства, застройщик предлагает воспользоваться выгодными программами в банках-партнерах. В частности, будет доступна субсидированная ипотека от 10,5% на первый год.

Применяется беспроцентная рассрочка 0% с первым взносом 60% стоимости помещения. Вся сумма разбивается на 30 месяцев равными платежами.
Доступно бронирование сроком на три дня с фиксацией цены помещения. Ценовых акций нет, возможна только скидка в размере 2% для помещений, окна которых выходят на Востряковское иудейское кладбище.


Инфраструктура
Комплекс расположен в тихом спокойном месте, в окружении Тропаревского парка, вблизи Очаковских прудов.




Можно бегать, можно неспешно прогуливаться и в любых вариантах дышать полной грудью свежим воздухом.




Район Тропарево-Никулино насыщен образовательными и медицинскими учреждениями, торговыми центрами.




Уже работает «джентельменский» набор торговых точек и предприятий услуг непосредственно на территории МФК, в его стилобатной части.


Спортсменов порадуют знаковые спортивные объекты по соседству: Центр пляжных видов спорта «Лето» и школа фигурного катания «Ангелы Плющенко». Деловая молодежь потянется в Президентскую академию РАНХиГС.



Автомобилисты оценят близость таких автодорог, как Боровское и Востряковское шоссе, улица Никулинская, Мичуринский проспект и проспект Вернадского. А пешеходы смогут садится в городской автобус прямо у дома.




И все вообще жители почувствуют себя лучше, оказавшись в атмосфере размеренности и уюта района Тропарево-Никулино.




Резюме
Аргументы «за»:
- Хорошая транспортная доступность
- Развитая инфраструктура
- Безупречная экология
- Приемлемая цена помещений
Аргументы «против»:
- Большое количество соседей на этаже
- Отсутствие московской прописки
Покупателям апартаментов следует отдавать себе отчет, что они приобретают не квартиру, а нежилое помещение или, другими словами, гостиничный номер. Здесь невозможно прописаться и коммунальные платежи выше, чем в квартирах. Выше и налог на недвижимость, в апартаментах он может достигать 2% стоимости лота. Покупатели апартаментов не имеют права на налоговый вычет. Но если главная цель покупателя – достичь нирваны в тихом и спокойном месте, ему следует поспешить, ведь помещения в МФК уже распроданы на 56 %.
