ЖК «Родина Переделкино»: мы будем жить теперь по-новому
Если вам приходилось проезжать по Боровскому шоссе в районе Переделкино, вы могли видеть у дороги торговый центр «Ново-Переделкино». Унылое, непримечательное по архитектуре рыночное здание, построенное еще в начале 21 века, как бы символ жизни «по-старому», вряд ли могло кого-то чем-то удивить.

Но вот пришло новое время, и территория устремилась к новой жизни, обогащаясь нестандартными архитектурными образами и яркими градостроительными доминантами. Как вы считаете, если архитектурный проект удостоен премии мэра Москвы за лучшее архитектурно-градостроительное решение многоквартирного жилого дома, он достоин вашего внимания?
Как доехать
Адрес новостройки: Москва, Западный административный округ, район Ново-Переделкино, Боровское шоссе, владение 51.
От 47 километра МКАДа до новостройки расстояние всего 8,3 километра, на автомобиле их можно преодолеть за 12 минут. А до центра Москвы, например, до улицы Ильинки, можно доехать на автомобиле примерно за полчаса (если без пробок!), расстояние составляет - 33 километра.


В шаговой доступности расположена станция метро «Новопеределкино» и масса рейсовых автобусов, курсирующих по Боровскому шоссе и улице Шолохова.







До международного «аэропорта Внуково» на автомобиле можно доехать за 10 минут.

Что строят
На территории площадью 3,4 гектара возводят многофункциональный комплекс с многоэтажной жилой застройкой. Класс новостройки «бизнес», технология строительства – монолит. Класс энергоэффективности А и А+ (очень высокий и высочайший).
Проектная декларация была опубликована 13 декабря 2024 года, извещение о начале строительства подано 28 декабря 2024 года.
Запроектировано строительство пяти жилых корпусов высотой от 30 до 31 этажа с общим стилобатом и отдельно стоящего офисного здания высотой 25 этажей.
Строительство разделено на три этапа:
- Первая очередь – корпуса №№ 1 - 3 (квартиры)
- Вторая очередь – корпуса №№ 4 - 5 (квартиры)
- Третья очередь – корпус № 6 (нежилые помещения, бизнес-центр)
Предусмотрено также строительство детского сада на 125 мест. Завершение проекта намечено на 2029 год.

Архитектурное решение проекта родилось в российском бюро Горпроект. Башням в стиле авангардизма придали призматическую форму и соединили их верхние этажи воздушным карнизом, напоминающим парящий мост. В плане, если смотреть с высоты птичьего полета, комплекс похож на часть шестеренки.
Этажи разделены горизонтальными металлическими панелями белого цвета. За ними скрываются технические помещения для размещения внешних блоков кондиционеров. А блоков будет много, ведь индивидуальная система кондиционирования предусмотрена для каждой квартиры.
Два нижних этажа предназначены для работы коммерческих структур, которые в перспективе создадут протяженную зону ритейла, включая гастроулицу. Помещения имеют высоту потолков от 3,52 до 6,32 метра и площадь от 84,0 до 668 кв.м.
Дизайн лобби разработан в бюро ECUS. Высота потолков до 6 метров, предусмотрено место для службы консъержей, места для работы и отдыха с мягкой мебелью, детская комната, гостевые санузлы, лапомойки. А также помещения для хранения колясок, велосипедов и самокатов, оснащенные системами видеонаблюдения и контролем доступа. В лобби также будут доступны розетки для зарядки мобильных гаджетов. А связь вай-фай будет доступна на всей территории комплекса.




Предметом особой заботы архитекторов стало благоустройство дворового пространства. В близлежащий Ульяновский лесопарк будет вести общедоступный бульвар. Там создадут детские и спортивные площадки, прогулочную зону вдоль пруда «Чайка», велосипедную дорожку протяженностью более двух километров до станции метро «Филатов Луг». Найдется место и для площадки для выгула собак.
Сбор бытового мусора организуют внутри зданий в специальных помещениях с принудительным охлаждением.




Здания односекционные. На одном этаже в секции построят от 6 до 13 квартир, связь между этажами обеспечат четыре высокоскоростных лифта китайской фирмы BLT Brilliant Elevator грузоподъемностью 630 и 1050 килограммов. На лифте можно будет спускаться на подземный этаж.
В стилобатной части комплекса расположится подземный паркинг на 187 автомобилей. Площадь машиноместа 13,3 кв.м. В паркинге предусмотрены зарядные станции для электромобилей. Парковочное место может быть продано только резидентам комплекса. Въезд в паркинг по системе распознавания номера. Кроме того,74 места будут оборудованы на территории. Доступ к ним будет возможен только по гостевому кьюар-коду.


Также в подземном этаже построят 172 кладовых помещения. Их оснастят металлической дверью, сеткой рабицей вместо потолка, цементным полом без бетонной стяжки.
Квартиры с высотой потолков 2,9 метра сдаются без отделки в свободной планировке. В них не будет даже стен, только трассировка высотой в один блок.

Часть квартир сдается с чистовой дизайнерской отделкой. Для последних предусмотрено:
- Укладка на пол ламината или керамогранита
- Укладка керамической плитки на стенах в ванной и санузле
- Сантехническое оборудование в ванной комнате
- Покраска стен
- Установка розеток и выключателей
- Установка межкомнатных дверей
- Установка металлической входной двери
Безопасность жителей обеспечит система видеонаблюдения во входных группах, лобби, паркинге и лифтах, детских и спортивных площадках. Доступ в здания через BLE-метку на смартфоне, для гостей через систему видеодомофонии. Специальное мобильное приложение поможет жителям не только управлять сервисами пользования квартирой, но и получать информацию о спортивной составляющей комплекса, направленной на поддержание здорового образа жизни.
Управляющая компания будет определена после введения домов в эксплуатацию.
В таблице № 1 приведены некоторые технические данные по комплексу.
Таблица 1.
| №№ корп. | Кол-во этажей | Площ. застр. (кв. м) | Кол.секц. | Кол-во квартир/кладов/маш.мест/нежил. пом. | Дата выдачи разр. на стр-во | Окончание срока действия разр. на стр-во | Предполагаемая дата введения в эксплуатац. |
|---|---|---|---|---|---|---|---|
| 1 | 30+1 подз | 34 622 | 1 | 337/71/10/8 | 12.12.2024 г. | 12.06.2029 | 4 квартал 2027 г. |
| 2 | 30+1 подз | 1 | 336 | ||||
| 3 | 30+1 подз | 1 | 337 | ||||
| 4 | 31+1 подз | 1 | 341/102/10/- | 4 квартал 2028 г. | |||
| 5 | 31+1 подз | 1 | 341 | ||||
| 6 | 25+1 подз | 1 | -/-/10/68 | 1 квартал 2029 г. |
Всего будет построено 1692 квартиры. Общая площадь объекта 63 422 кв.м., плотность застройки 40 000 кв.м./га.
В настоящее время на стройплощадке ведутся работы по возведению монолитных конструкций на уровне четвертого и седьмого этажей.
Планируемые сроки выдачи ключей:
- корпус № 1 – 31.12.2028 г.
- корпус № 2 – 31.12.2028 г.
- корпус № 3 – 31.12.2028 г.
- корпус № 4 – 31.12.2029 г.
- корпус № 5 – 31.12.2029 г.
- корпус № 6 – 31.12.2029 г.
Кто строит
На земельном участке с кадастровым номером 77:07:0015009:5859 строительство ведет ООО «Специализированный застройщик «Родина-2». Компания создана в июле 2022 года, земля принадлежит ей на праве аренды. За предыдущие три года компания жилищного строительства не вела.



Ранее на месте строительства размещался рынок «Ново-Переделкино». До начала строительства застройщику пришлось сносить кирпичные здания, построенные в 1997 и 2002 годах.

Участок ограничивают:
- с запада – Боровское шоссе
- с юга – территория Ульяновского лесопарка
- с севера - автостоянка
- с востока – торговый центр «Шолохов»
Земельный участок полностью расположен в границах приаэродромной территории аэродрома Москва (Внуково)
Учредитель компании-застройщика и девелопер проекта - инвестиционно-девелоперский холдинг АО «Группа «Родина», одним из бенефициаров которой является известный российский бизнесмен Натан Винер.

Данная компания входит в пятерку самых надежных застройщиков премиальных жилых комплексов Москвы. Основной целью деятельности «Родины» является создание комфортной, экологичной и безопасной среды обитания людей в условиях большого города. «Группа «Родина» - это:
- ТОП-5 надежных застройщиков в сегменте премиум по версии Forbes
- ТОП-10 надежных застройщиков Москвы по итогам 2024 года
- 11 лет на рынке
Тем не менее, в работе компании были случаи нарушения сроков сдачи объектов в эксплуатацию.


Генподрядчик ООО «Инновационный кластер».
Сайт
В сети Интернет размещен официальный сайт новостройки, на котором доступна детальная информация о расположении объекта, ценах на квартиры и планировках, способах покупки, акциях и скидках.

Доступна строительная документация, ход строительства отражается в фоторепортажах и через он-лайн камеры. Можно скачать с сайта презентацию по проекту.




Офис продаж расположен рядом со строительной площадкой в специально построенном здании по адресу Москва, ЗАО, Боровское шоссе, 51. Офис работает ежедневно с 9 до 21 часа.


В офисе продаж можно получить исчерпывающую профессиональную консультацию об особенностях и преимуществах проекта, увидеть окончательный вид комплекса на макете.



Сколько стоит
Таблица 2.
| Тип квартиры | Площадь (кв. м) | Стоимость квартиры (руб.) | Стоимость одного квадратного метра (руб.) |
|---|---|---|---|
| Студия | 24,1 – 27,2 | 11 363 500 – 12 614 815 | 471 514 – 463 780 |
| Двухкомнатная | 38,0 – 53,0 | 15 507 779 – 19 690 700 | 408 099 – 371 522 |
| Трехкомнатная | 64,1 – 96,9 | 26 592 530 – 36 816 225 | 414 860 – 379 940 |
| Четырехкомнатная | 82,2 – 96,9 | 31 908 400 – 36 890 000 | 388 180 – 380 701 |
Средняя стоимость квадратного метра равна 409 824 рублям.
В таблице ниже приведены цены на двухкомнатные квартиры с отделкой и без в строящихся домах бизнес- и премиум-класса в Западном административном округе Москвы.
Таблица 3.
| Название ЖК | Ближайшая станция метро | Площадь квартир (кв. м) | Стоимость квартир (руб.) | Стоимость одного кв. м (руб.) | Отделка | Срок сдачи |
|---|---|---|---|---|---|---|
| «Ривер Парк Кутузовский» | «Фили» | 61,3 | 54 971 048 | 896 754 | Есть | 3 квартал 2027 г. |
| «Левел Мичуринский» | «Мичуринский проспект» | 43,5 | 28 727 312 | 660 398 | Нет | 2 квартал 2027 г. |
| «Родина Парк» | «Давыдково» | 46,7 | 30 356 732 | 650 037 | Нет | 1 квартал 2028 г. |
| «Среда на Лобачевского» | «Аминьевская» | 51,1 | 24 819 270 | 485 700 | Нет | 4 квартал 2027 г. |
| «Среда на Кутузовском» | «Кунцевская» | 56,57 | 25 682 780 | 454 000 | Есть | 4 квартал 2027 г. |
| «Родина Переделкино» | «Новопеределкино» | 38,0 | 15 507 779 | 408 099 | Нет | 4 квартал 2027 г. |
| «Мичуринский Парк» | «Озерная» | 57,5 | 22 862 000 | 397 600 | Есть | 1 квартал 2028 г. |
| «Уно. Горбунова» | «Молодежная» | 54,38 | 19 794 320 | 364 000 | Нет | 1 квартал 2028 г. |
По стоимости квадратного метра «Родина» оказалась на седьмой строчке данного рейтинга.
Планировки
На продажу выставлены студии, двух-, трех- и четырехкомнатные квартиры площадью от 24,1 до 96,9 кв.м. в корпусах №№ 1, 2 и 4. Квартирография весьма разнообразна: есть лоты с двумя санузлами, мастер-спальней, постирочной и гардеробной комнатой.




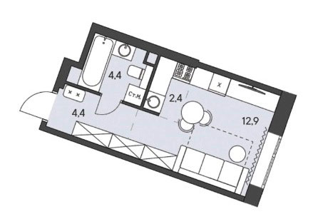
Миниатюрная студия с входной зоной 4,4 кв.м., совмещенным санузлом площадью 4,4 кв.м. и универсальным помещением площадью 15,3 кв.м.

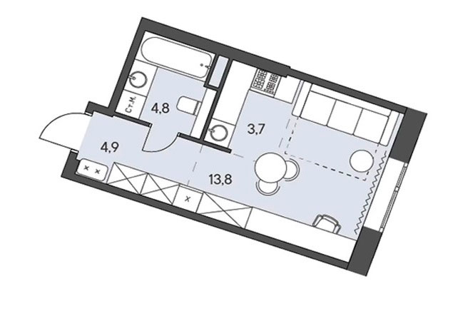
Студия с входной зоной площадью 3,7 кв.м. совмещенным санузлом площадью 4,4 кв.м. и универсальным помещением площадью 17,3 кв.м.

Более просторная студия с входной зоной площадью 4,9 кв.м., совмещенным санузлом площадью 4,8 кв.м. и универсальным помещением площадью 17,5 кв.м.

Двухкомнатная квартира евро формата с входной зоной площадью 4,0 кв.м., совмещенным санузлом площадью 4,5 кв.м., кухней-гостиной площадью 17,5 кв.м. и спальней площадью 12,0 кв.м. Расположение окон одностороннее. Некоторые комнаты неправильной формы.

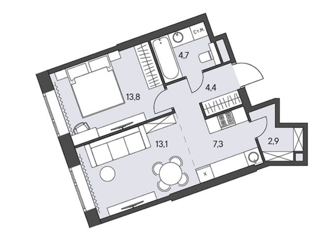
Квартира евро-формата располагает входной зоной площадью 4,4 кв.м., совмещенным санузлом площадью 4,7 кв.м., кухней-гостиной площадью 20,4 кв.м. и спальней площадью 13,8 кв.м. Плюс гардеробная площадью 2,9 кв.м. Расположение окон одностороннее.

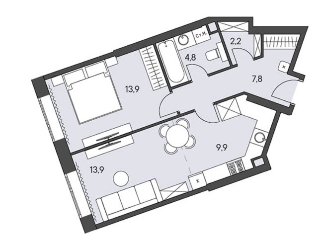
В проекте двухкомнатной квартиры евро-формата видим входную зону площадью 7,8 кв.м., совмещенный санузел площадью 4,8 кв.м., кухню-гостиную площадью 23,8 кв.м. и спальню площадью 13,9 кв.м. Имеется гардеробная площадью 2,2 кв.м. Расположение окон одностороннее.

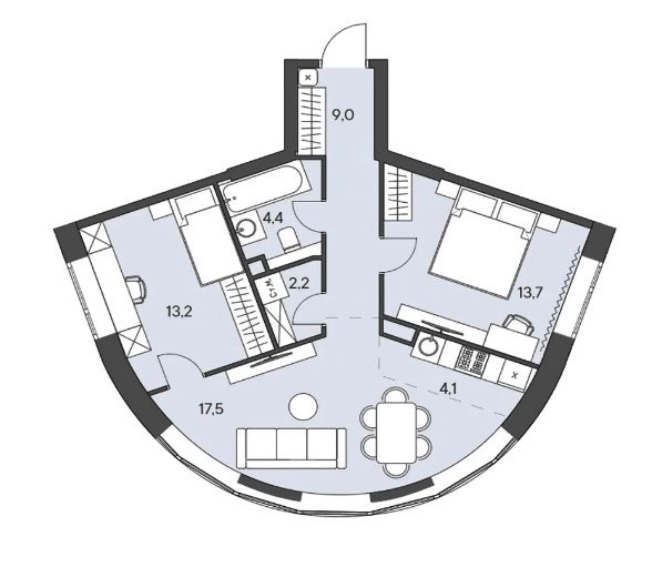
В трехкомнатной квартире евро-формата запроектирована входная зона площадью 9,0 кв.м., совмещенный санузел площадью 4,4 кв.м., кухня-гостиная площадью 21,6 кв.м. и две спальни площадью 13,2 и 13,7кв.м. Имеется гардеробная площадью 2,2 кв.м. Расположение окон угловое, окна в кухне-гостиной образуют полусферу.

Трехкомнатная квартира евро-формата располагает входной зоной площадью 4,7 кв.м., двумя санузлами площадью 4,0 и 5,5 кв.м., кухней-гостиной площадью 20,1 кв.м. и двумя спальнями площадью от 17,0 до 18,9.м. Есть мастер-спальня со сферическим окном. Имеется постирочная площадью 1,9 кв.м. Расположение окон двухстороннее.

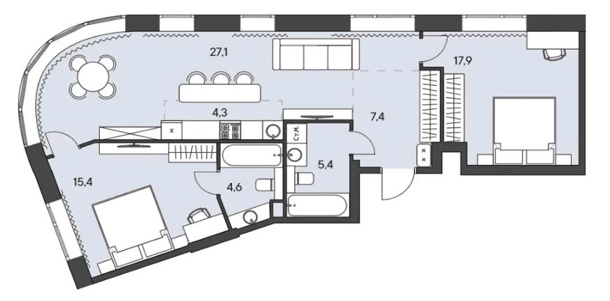
Трехкомнатная квартира евро-формата запроектирована с входной зоной 7,4 кв.м., двумя санузлами с площадью помещений от 4,6 до 5,4 кв.м., кухней-гостиной площадью 31,4 кв.м. и двумя спальнями площадью 15,4, до 17,9 кв.м., одна из них в формате «мастер». Расположение окон на две стороны, в кухне-гостиной есть сферические окна.

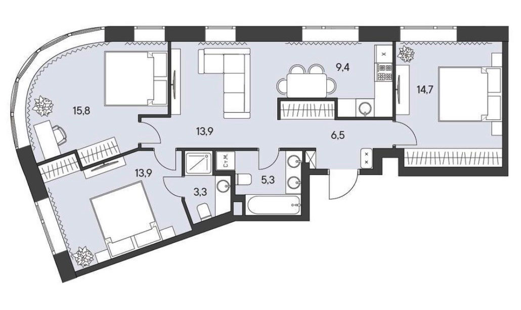
Четырехкомнатная квартира евро-формата оснащена входной зоной площадью 6,5 кв.м., двумя санузлами площадью 3,3 и 5,3 кв.м., кухней-гостиной площадью 23,3 кв.м. и тремя спальнями площадью от 13,9 до 15,8кв.м. Есть мастер-спальня. Расположение окон двухстороннее, в кухне-гостиной два окна, в одной из спален сферическое окно.

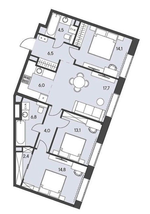
Четырехкомнатная квартира евро-формата оснащена входной зоной площадью 6,5 кв.м., двумя санузлами площадью 4,5 и 6,8 кв.м., кухней-гостиной площадью 23,7 кв.м. и тремя спальнями площадью от 13,1 до 14,8кв.м. Две спальни объединены в блок с санузлом, в одной из них имеется гардеробная. Расположение окон одностороннее.

Четырехкомнатная квартира евро-формата располагает входной зоной площадью 8,1 кв.м., двумя санузлами площадью 4,3 и 5,6 кв.м., кухней-гостиной площадью 24,7 кв.м. и тремя спальнями площадью от 14,6 до 14,8кв.м. Плюс гардеробная площадью 5,0 кв.м. Расположение окон одностороннее.
Как купить
Продажа квартир ведется в соответствии с федеральным законодательством. Процесс сделки оформляется в виде договора долевого участия между покупателем и застройщиком. Средства покупателя необходимо разместить на специальном счете эскроу в ПАО Сбербанк России. Все расходы, связанные с оформлением договора и его регистрацией в Росреестре застройщик берет на себя.
Клиентам, которые вносят за квартиру сразу 100% стоимости или используют для этой цели ипотечный кредит, предоставляются скидки от 19 до 30% на отдельные лоты.

Девелопер сотрудничает с ведущими банками страны и готов помочь клиенту с выбором оптимальных условий ипотеки. Например, стандартная ипотека под 18.5 % годовых или семейная ипотека под 6 % с суммой кредита до 12 000 000 рублей.

Можно оформить покупку в рассрочку. Например, внеся сразу 30% стоимости квартиры, покупатель получает право погашать задолженность взносами по 200 тысяч рублей до конца строительства. А если внести 40%, размер платежей составит 100 тысяч рублей.
Можно забронировать выбранную квартиру сроком на две недели с фиксацией цены, эта услуга стоит 100 000 рублей. Данный платеж будет учтен при окончательном расчете, но если сделка не состоится, деньги останутся у застройщика.
Инфраструктура
Территория обладает развитой инфраструктурой, ведь это давно обжитый, привлекательный с точки зрения условий жизни район Москвы.

Рядом найдутся и школы, и поликлиники, и торговые предприятия на все вкусы и потребности. Сразу за Боровским шоссе расположен микрорайон Ново-Переделкино с многочисленными магазинами, кафе и предприятиями сферы услуг. Плюс гастроулица на променаде ЖК, подбором ресторанов и кафе для которой займется команда ресторанного холдинга Viner Group.




Станция метро в 100 метрах от дома – это тоже весомое преимущество новостройки. Выезд на автомобиле на современное Боровское шоссе займет две минута, выезд на скоростную магистраль «Солнцево — Бутово — Варшавское шоссе» -десять минут. А далее – везде, ведь вы становитесь пользователем лучшей в мире городской автомобильной инфраструктуры – московской.




Для любителей спорта доступны горнолыжный склон в Ново-Переделкино, спорткомплекс «Арктика» с ледовыми аренами и бассейном, спортивные школы по различным видам спорта.
Из окон виден – просто рукой подать – обширный зеленый массив, Ульяновский лесопарк. В нем можно гулять, дышать полной грудью озоном.

Правда эту возможность существенно ограничивает расположенное с другой стороны от ЖК Боровское шоссе с интенсивным дорожным трафиком и высокой концентрацией вредных выбросов в атмосферу.
Уникальные возможности для развития цифровизации и освоению новых технологий предоставит жителям комплекса первая в Москве кибер-арена - киберспортивный кластер с медиа-фасадом, где будут проводиться кибер-соревнования с трансляцией игр на большом экране, концерты и медиа-выставки.
Офисный центр почти на 3 000 рабочих мест предоставит жителям не только найти работу, но и организовать рабочее место рядом с домом.
Резюме
У проекта много плюсов. Это:
- Прописка в Москве
- Современная архитектура
- Прекрасная транспортная доступность
- Наличие зеленой зоны
- Развитая инфраструктура района Переделкино
Из минусов отметим близость загруженной автомагистрали Боровское шоссе и возможное негативное воздействие от вибрации почвы от проложенной под комплексом ветки московского метро.
